EURO DESIGN 70
MCRYAPI PVC PENCERE VE KAPI SİSTEMLERİ
EURO DESIGN 70
Euro-Design 70, ticari yapılar için en iyi ön koşulları sunuyor.
- Rehau’nun en ekonomik PVC sistemidir.
- High Definition Finishing yüzeyi (HDF): kaliteli, değerli, pürüzsüz, yüksek parlaklıkta ve bu sayede temizlenmesi çok kolaydır.
- Geri dönüştürülebilir olduğundan çevre dostudur.
- Zarif dizaynı ile de fazla cam alanına sahiptir.Bu gün ışığından daha fazla yararlanılmasını sağlar böylece daha iyi hissettirir.
- Geniş renk yelpazesi sayesinde sınırlarınızı zorlayabilirsiniz.
- Beyaz profillerin üzerinde bulunan açık gri contalar vurgu katar.

EURO DESIGN 70

EURO DESIGN 70

EURO DESIGN 70

EURO DESIGN 70
Euro-Design 70, ticari yapılar için en iyi ön koşulları sunuyor.
Kanıtlanmış REHAU kalite standartları sayesinde Euro-Design 70, ekonomik bir pencere sistemidir.
Bir çok biçim, renk ve bir tasarım kanat sayesinde, cephe kompozisyonunda geniş imkanlar sunulur.
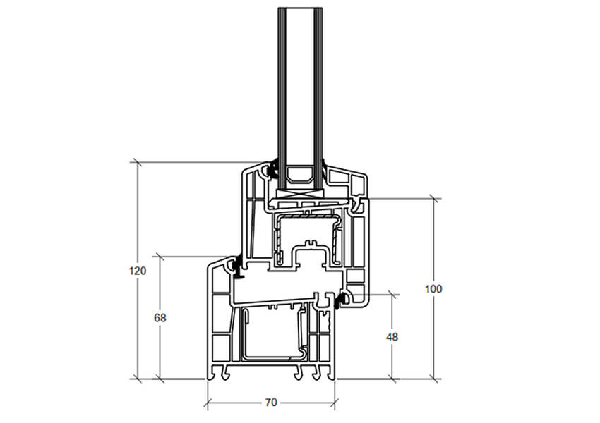
Profil Genişliği | 70/mm sıkıştırılmış conta |
---|---|
Odacık Sayısı | 5 odacık |
Isı Yalıtımı | Uf : 1,3 W / m²K (Termik Ayrımlı Destek Sacı Euro Design 70 Plus) |
Ses Yalıtımı | Ses Yalıtımı 4'e Kadar |
Hırsızlık Emniyeti | Direnç Sınıfı 2’ye Kadar (ENV 1627 ) |
Hava Geçirgenliği | EN12207 Uyarınca Sınıf 4 |
Sağanak Yağış Geçirimsizliği | EN12208 Uyarınca Sınıf 9'a kadar |
Yüzey | Yüksek değerli Düz ve Bakımı Kolay |
- Kanat biçimlerini seçerek cephe kompozisyonu imkanları;Z düz veya yuvarlatılmış.
- Dekor folyo, boya veya alüminyum kapak sayesinde geniş tasarım imkanları.
- Oval ve üçgenin yanı sıra kırık ve karolajlı şekiller sayesinde, kişisel olarak biçimlendirme imkanı
- Beyaz profillerin üzerinde bulunan açık gri contalar vurgu katar.
- Açılır-kapanır ve katlanır pencerelerde dışa açılımlı pencereler, sağa veya sola açılım.
- Çift açılım pencereler için içeri açılan pencereler
- Dışa açılan veranda pencereleri
- Sağa veya sola açılan çift açılım veranda pencereleri için içeri açılan pencereler
- Bir çok uygulama için ekonomik bir sistem
- High Definition Finishing yüzeyi (HDF): kaliteli, değerli, pürüzsüz, yüksek parlaklıkta ve bu sayede temizlenmesi çok kolay
- Daha iyi bir su tahliyesi ve kolay temizlenebilmesi için kasa profili içerisinde eğik oluk
- Yüksek yapı derinliğine sahip destek sacları sayesinde iyi statik özellikler
- Asgari depolama için kasa profilinde ve kanatta aynı destek sacları
- Akılcı bir imalat için seçime bağlı olarak kaynaklanabilir contalar
- Geri dönüştürülebilir olduğundan çevre dostu