MASTER PATIO
MCRYAPI ALÜMİNYUM PROFİL SİSTEMLERİ
MASTER PATIO
En İyiler İçin Üretildi.
Master Patio, tüm ortaklarımız ve müşterilerimiz tarafından tercih edilebilir bir sürme sistemdir.
- Üstün yalıtım performansı ve geri dönüştürülmüş bileşenleri, bu birinci sınıf alüminyum çözümü her mimari proje için ideal, sürdürülebilir bir seçim haline getirir.
- Yüksek katlı projeler için yüksek performanslara sahip yüksek yalıtımlı sistem
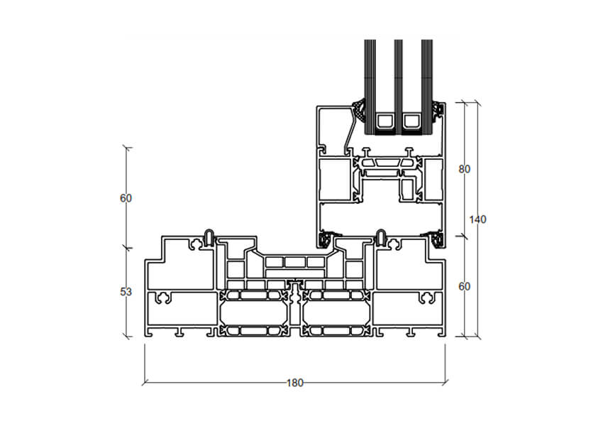
- MasterLine 8 sistemimizle uyumlu ve üretimi kolay, zeminden tavana bir cephe sistemi
- Geri dönüştürülmüş malzemeler ve üretim sırasında azaltılanatıklar sayesinde sürdürülebilirlik sağlanır

MASTER PATIO

MASTER PATIO

MASTER PATIO

MASTER PATIO

MASTER PATIO

MASTER PATIO
- “En İyiler Tarafından Üretildi”, MasterPatio, tüm uygulayıcılar, mimarlar ve ev sahipleri için tercih edilebilir bir sürme sistemdir.
- Üstün yalıtım ve geri dönüştürülmüş bileşenleri, alüminyum çözümü tüm yeni yapılar veya renovasyon projeleri için ideal bir sürdürülebilir çözüm haline getirir.
- MasterPatio, temiz ve işlevsel görünümü ve MasterLine 8 serimizle kusursuz entegrasyonu sayesinde neredeyse tüm tasarım taleplerine cevap veren oldukça esnek bir sistemdir.
Isı yalıtımı - Uf | 1.3 W/m²K |
---|---|
Isı yalıtımı - Uw | 0.8 W/m²K |
Hava sızdırmazlığı (Konfor) | Class 4 (600Pa) |
Su geçirmezliği (Konfor) | Class E1200 (1200Pa) |
Rüzgar yüküne karşı dayanım | Class C5 (2000Pa) |
Hava sızdırmazlığı | 1 (150 Pa) |
AMAA derecelendirmesi | Class CW |
PG derecelendirmesi | 30 |
Açılma ve kapanma direnci | Class 3 |
Darbe Dayanımı | 14 |
Kasırga direnci | Zone 2 - Missile D |
- Yenilikçi tasarımı ve patentli özellikleri sayesinde MasterPatio, 2021 yılında prestijli Red Dot Tasarım Ödülü’nü aldı.
- Premium sürdürülebilir sürme çözümleri arasında en iyi seçim.
- Zeminden tavana görünür hatları, ürüne kendine özgü minimalist görünümünü kazandırmak için minimumda tutulmuştur.
- İnce kenet: Pencerenin en görünür olduğu yerde şeffaflığını artırmak.
- Düşük eşik: Kolay erişim, daha temiz görünüm.
- Sıfır eşik: Kesintisiz zemin döşemesi ile sınırsız giriş.
- Geçiş kontrolü: Evinizi akıllı ve bağlantılı hale getirir.
- Motorlu: Uzaktan bile rahat kullanım.
- Yavaş kapanma: Güvenlikle konforu birleştirir.
- Dere profili: Eşik olmadan daha iyi bir su performansı
- Gizli drenaj: Artık plastik kapaklar yok, bu temiz çizgilerin tadını çıkarın.
- Sineklik: Uykunuz bölünmeden, soğuk yaz akşamlarının tadını çıkarın