RST 116
MCRYAPI ALÜMİNYUM PROFİL SİSTEMLERİ
RST 116
RST 116 Sürme Sistem, Yüksek Performanslı, Yalıtımlı Sürme Doğrama Sistemi
- 116 mm kasa 52 mm kanat derinligi bulunmaktadır.
- Et kalınlığı 1,8/2 mm’dir.
- Kaldır Sür mekanizma kullanılabilirliği ile yüksek performans değerleri sağlar.
- Monoray, çift ray ve üç raylı kasa seçenekleri mevcuttur.
- Kaldır sür ve basit sürme alternatifleri ile farklı kullanım seçeneklerine sahiptir.

RST 116

RST 116

RST 116

RST 116
- RST 116 Yüksek ısı yalıtım değerlerine sahip hem basit sürme hem de kaldır-sür özelliği sunmaktadır.
- Üç ray üzerinde çalışan altı kanat ile konut ve iş yerlerinde geniş açıklıkları güvenle kapatmak için önerilen bir sistemdir.
- RST 116 üstün estetik özellikler ve performans değerlerinin birlikte sunulduğu bir sürme sistemdir.
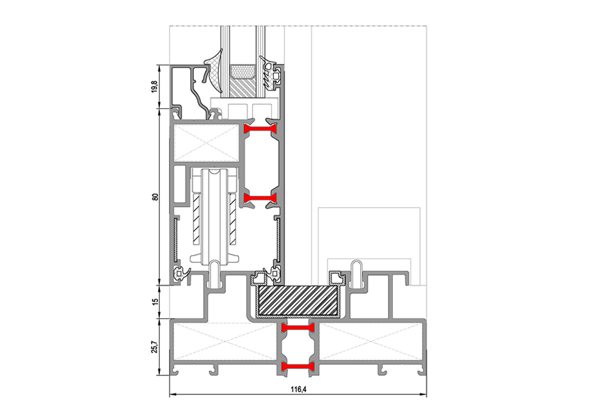
Kasa Derinliği | Min. 116.4 mm – Max. 180.8 mm |
---|---|
Kanat Derinliği | 52.1 mm |
Profil Et Kalınlığı | 1,6 / 1,8 / 2 mm |
Max Cam Kalınlığı | 33 mm |
Isı Bariyeri | 14,8 mm |
Hava Geçirgenliği (EN 12207) |
4 (600 Pa) |
Su Sızdırmazlığı (EN 12208) |
E1200 (1200 Pa) |
Rüzgar Yüküne Dayanım (EN 12210) |
3 (1200 Pa) |
Sehim Kriteri (EN 12210) |
B (L/200), C (L/300) |
Sistem UF Değeri (EN 10077-2) |
3.89 ~ 4.52 W/m²K |
Sistem Ses Yalıtımı (EN 10140-2) |
30 dB |
- Pervaz ve sineklik çözümleri ve yüksek kanat yapılabilirliğine imkan veren takviyeli profil seçeneği sunar.
- Oteller, is merkezleri, rezidanslar, özel konutlar ve alışveriş merkezler gibi projelerin sürme, kapı ve pencere uygulamalarında kullanılabilir.
Kullanım Seçenekleri | Kapı | Pencere |
---|---|---|
Kaldır - Sür | ||
Basit Sürme | ||
45° Kanat Birleşimi | ||
Cam Çıtalı Kanat | ||
Mono Raylı Kasa | ||
3 Raylı Kasa | ||
Sabit Kasa |