RWT 67
MCRYAPI ALÜMİNYUM PROFİL SİSTEMLERİ
RWT 67
RWT 67 Isı Yalıtımlı Kapı ve Pencere Sistemleri
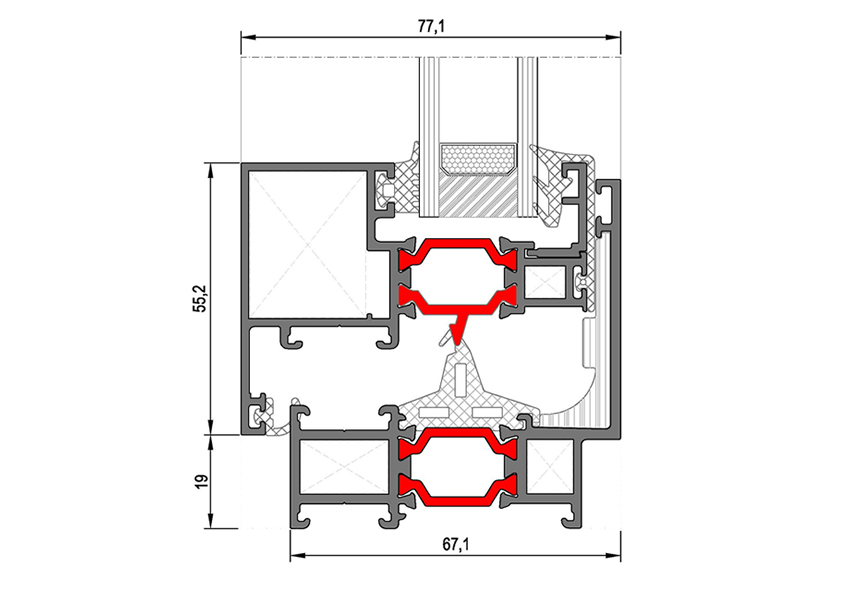
- 67,1 mm kasa derinliğine sahiptir.
- Gizli kanat açılım özelliği olan ısı yalıtımlı alüminyum kapı ve pencere sistemi
- Kanat çerçeveleri dışarıdan bakıldığında görünmez.
- Kanat açık olduğunda diğer camlar ile farkı bir profil genişliği oluşturmadığı için görüntü değişmez.
- Takviyeli ortakayıt ile yüksek rüzgar basıncına dayanıklıdır.

RWT 67

RWT 67

RWT 67

RWT 67
- RWT 67 Doğrama Sistemi, 67.1 mm kasa derinliğine sahiptir.
- Gizli kanat açılım özelliği olan ısı yalıtımlı alüminyum kapı ve pencere sistemidir.
- Kanat çerçeveleri dışarıdan bakıldığında görünmez ve kanat açık olduğunda diğer camlar ile farkı bir profil genişliği oluşturmadığı için görüntü değişmez.
- Takviyeli ortakayıt ile yüksek rüzgar basıncına dayanıklıdır.
- Normal açılım, çift eksen ve vasistas kullanım seçenekleri mevcuttur.
- 24 mm ısı bariyeri ve 24 mm maksimum cam kalınlığı bulunmaktadır.
- 72,1 mm kanat derinliği ve 1,7/1,6/2 mm et kalınlığına sahip profil seçenekleri mevcuttur.
Kasa Derinliği | 67.1 mm |
---|---|
Kanat Derinliği | 72.1 mm |
Profil Et Kalınlığı | 1,6 / 1,7 / 2 mm |
Max Cam Kalınlığı | 24 mm |
Isı Bariyeri | 24 mm |
Hava Geçirgenliği (EN 12207) |
4 (600 Pa) |
Su Sızdırmazlığı (EN 12208) |
9A (600 Pa) |
Rüzgar Yüküne Dayanım (EN 12210) |
3 (1200 Pa) |
Statik Burulma (TS EN 13115 ) |
4 (350 N) |
Sistem UF Değeri (EN 10077-2) |
2.77 ~ 3.02 W/m²K |
Sistem Ses Yalıtımı (TS EN ISO 717-1) |
Rw(C;Ctr)=35.5(-2.4;5.5) dB |
Kullanım Seçenekleri | Kapı | Pencere |
---|---|---|
İçe Açılır | ||
Vasistas | ||
Gizli Kanat | ||
Çift Eksen Açılım |