RWT 75
MCRYAPI ALÜMİNYUM PROFİL SİSTEMLERİ
RWT 75
RWT 75 ile Tüm Binalarda Daha Güçlü Yalıtım, Daha Fazla Güvenlik
- Özel yalıtım malzemeleri ile düşük uf değerleri sağlar.
- Yüksek ısı ve statik performanslı ısı yalıtımlı alüminyum kapı ve pencere sistemidir.
- Isı yalıtım değeri (uf) 1,752 w/m2k dir.
- Kapılar hemyüzlüdür. Kapılarda eşik sistemi vardır ve profil içerisine özel yalıtım malzemeleri konularak daha fazla yalıtım sağlanır.

RWT 75

RWT 75

RWT 75

RWT 75
- RWT 75, Özel yalıtım malzemeleri ile düşük uf değerleri sağlayan, yüksek ısı ve statik performanslı ısı yalıtımlı alüminyum kapı ve pencere sistemidir.
- Kapılar hemyüzlüdür. Kapılarda eşik sistemi vardır ve profil içerisine özel yalıtım malzemeleri konularak daha fazla yalıtım sağlanır
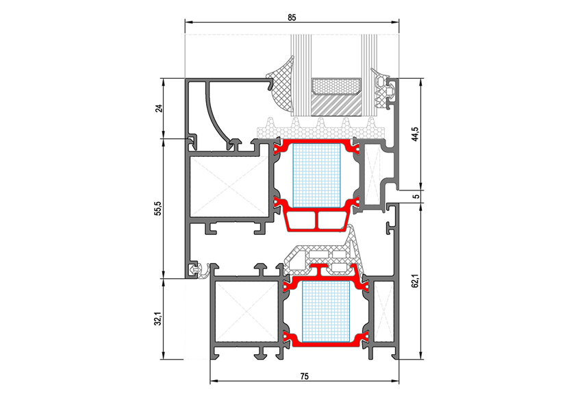
- 75 mm kasa derinliği, 85 mm kanat derinliği
- 2 mm ve 1,4 mm et kalınlığında profil seçenekleri mevcuttur.
- 34 mm ısı bariyerine sahiptir.
- Normal açılım, çift eksen, vasistas, çekme sürme, pvc açılım aksesuarına uygun kanat alternatifleri mevcuttur.
Kasa Derinliği | 75 mm |
---|---|
Kanat Derinliği | 65 / 85 mm |
Profil Et Kalınlığı | 1,6 / 2 mm |
Max Cam Kalınlığı | 48 / 58 mm |
Isı Bariyeri | 34 mm straforlu / 34 mm with styrofoam |
Hava Geçirgenliği (EN 12207) |
4 (600 Pa) |
Su Sızdırmazlığı (EN 12208) |
E1650 (1200 Pa) |
Rüzgar Yüküne Dayanım (EN 12210) |
4 (1600 Pa) |
Sehim Kriteri (EN 12210) |
C (L/300) |
Statik Burulma (TS EN 13115 ) |
4 (350 N) |
Sistem UF Değeri (EN 10077-2) |
1.35 ~ 1.82 W/m²K |
Sistem Ses Yalıtımı (TS EN ISO 717-1) |
Rw(C;Ctr)=42(-2;6) dB |
Kullanım Seçenekleri | Kapı | Pencere |
---|---|---|
İçe Açılır | ||
Dışa Açılır | ||
Vasistas | ||
İçe Açılır Hemyüz Kapı | ||
Çift Eksen Açılım | ||
PVC Aksesuar İçin Kanat | ||
Çek & Sür |