GENEO
MCRYAPI PVC PENCERE VE KAPI SİSTEMLERİ
GENEO
Mükemmel yaşam alanlarına uygun pencereler
- GENEO, piyasada bulunan 86 mm yapı derinliğine sahip pencere profil sistemleri arasında enerjik olarak en iyisidir.
- GENEO'nun özelliği yüksek teknolojiye sahip RAU-FIPRO malzemesinde yatar.
- Stabilite için gerekli olan destek sacları uygulamaların %90'ında ortadan kalkar.
- Böylece, çeliğin sebep olduğu ısı köprüleri ortadan kalktığı için, GENEO ene iyi ısı yalıtım değerlerini hedefler.
- GENEO ile "enerji tasarruf düzenlemesinin (EnEV)" şart koyduğu koşullardan daha fazlası bile yerine getirilir.

GENEO

GENEO

GENEO

GENEO

GENEO
GENEO pencereler, üstün ısı yalıtımlarının yanı sıra birbiriyle uyumlu bileşenlerin oluşturduğu genel paketiyle de göz doldurur.
Çünkü: RAU‑FIPRO fiber kompozit malzeme sayesinde GENEO ürünlerde çelik kullanılmadan maksimum stabilite elde edilir.
Bu sayede GENEO pencereler son derece hafiftir ve başka hiçbir pencerenin sunamayacağı ısı yalıtımı özelliklerine sahiptir.
• Malzeme: Elyaf bileşimli RAU-FIPRO,en yüksek yüzey kalitesi için
kaliteli RAU-PVC’den koekstrüzyon ile üretilmiş dış tabaka.
• Yüksek ısı yalıtımı sayesinde standart ahşap pencereler ile
karşılaştırıldığında %76 ya varan oranda enerji tasarufu sağlar.
• Uygun cam versiyonu kullanımı ile dışarıdan gelen gürültüyü
24 kata kadar azaltır ve böylece huzurun tadına varmanızı sağlar.
• Ekstra sağlamlığı yanı sıra eğimli dizaynı sayesinde pencerelerinize
estetik katar.
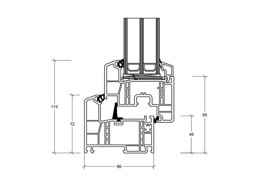
Profil Genişliği | 86 mm / orta conta |
---|---|
Odacık Sayısı | 6 odacık |
Isı Yalıtımı | Uf : Uf 0,86 W/m²K'ya kadar |
Ses Yalıtımı | Çelik destek sacı olmadan Rw,P = 47 dB'ye kadar (camlama ile birlikte Rw = 50 dB) |
Hırsızlık Emniyeti | Direnç sınıfı RC3’e kadar, çelik destek saçsız direnç sınfı RC2’ye kadar. |
Hava Geçirgenliği | 4 (EN 12207) |
Sağanak Yağış Geçirimsizliği | 9A (EN 12208) |
Enerji tasarrufu: | %76'ya kadar |
- Özel şekiller sayesinde çok sayıda mimari imkan, örn. oval ve üçgen pencerelerin yanı sıra kemerli ve karolajlı yapı şekilleri ilk kez destek sac ile mümkündür.
- Desenli folyo, boya veya alüminyum kapak sayesinde çok çeşitli kompozisyon olanakları
- Beyaz profillerin üzerinde bulunan açık gri contalar ve renkli profillerin üzerinde bulunan siyah contalar vurgu katar.
- 20°lik kemer ve 5 mm dış radyüsler sayesinde zarif görünüm
- Kemerli kanat tasarımı sayesinde ilave tasarım imkanları
-
Huzur ve sessizliğin garantisidir.
Gürültü sürekli olduğunda sağlığınızı tehdit eder. GENEO şimdiye kadar görülmemiş oranda, 5. derecede ses izolasyonu sağlar.* - * Sesin 10 dB yükselmesi algılanan ses seviyesinin iki katına çıkması demektir. GENEO sesi 47 dB azaltır.

- İlave çelik destek sacı olmadan tam destekli pencere sistemi
- Yüksek teknolojik RAU-FIPRO malzemesi sayesinde kusursuz bir profil konstrüksiyon ve "entegre edilmiş takviye sistemi (IVS)" ile mükemmel stabilite
- Optimum ışık için 115 mm görülen genişlik
- Alışılagelmiş pencere profil sistemleri ile karşılaştırıldığında %40'a varan hafiflik avantajı
- Yalıtım özelliklerinin ısı modülleriyle optimize edilmesi için fonksiyon odacıkları
- Üçlü ısıcam uygulaması için 66 mm geniş cam boşluğu
- High Definition Finishing yüzey (HDF): yüksek kaliteli, şık, son derece düz bir yapıya sahip ve bu yüzden bakımı kolaydır.
- Kusursuz enerji verimliliği - GENEO ailesi ile (pencere, ev kapısı, kaldırmalı sürme kapı) bina cephe yalıtımını en uygun şekilde yapabilirsiniz