CONCEPT PATIO 130
MCRYAPI ALÜMİNYUM PROFİL SİSTEMLERİ
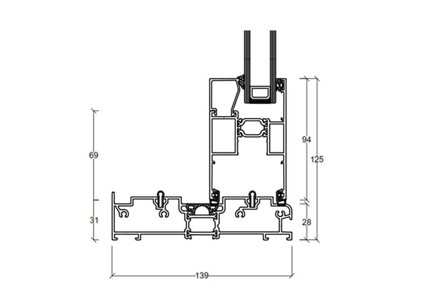
CONCEPT PATIO 130
Concept Patio 130; fiyat, performans ve estetiği dengeleyen nitelikli (kaldır-sür opsiyonları sunan) bir sürme çözümüdür.
- Çok yönlü bu alüminyum sistem, hem mimarların hem de esahiplerinin sınırsız alanlar yaratmasına olanak tanır.
- Farklı açılım tipleri ile eksiksiz bir çözüm
- Performans ve makul fiyatlar arasında mükemmel denge
- Eşsiz düşük eşiğiyle renovasyon dostu profil seçimi

CONCEPT PATIO 130

CONCEPT PATIO 130

CONCEPT PATIO 130

CONCEPT PATIO 130

CONCEPT PATIO 130

CONCEPT PATIO 130
- ConceptPatio 130, fiyat, performans ve tasarımı dengeleyen niteliksel (kaldır ve sür opsiyonlu) bir sürme çözümüdür
- Çok yönlü alüminyum sistem, hem mimarların hem de ev sahiplerininsınırsız alanlar yaratmasına olanak tanır.
- Farklı açılım tipleri ile eksiksiz bir çözüm
- Performans ve makul fiyatlar arasında mükemmel denge
- Eşsiz düşük eşiğiyle renovasyon dostu profil seçimi Sonsuz olasılıklar
Isı yalıtımı - Uw Double | 0.33 Btu/hr.ft².°F |
---|---|
Isı yalıtımı - Uw Üçlü | 0.25 Btu/hr.ft².°F |
Isı yalıtımı - Uf | 1.9 W/m²K |
Isı yalıtımı - Uw | 1.4 W/m²K |
Hava sızdırmazlığı (Konfor) | 0.06 cfm/ft³ |
Su geçirmezliği (Enerji) | 15 psf |
Hava sızdırmazlığı (Konfor) | Class 4 (600Pa) |
Su geçirmezliği (Konfor) | Class 8A (450Pa) |
Rüzgar yüküne karşı dayanım | Class B3 (1200Pa) |
AMAA derecelendirmesi | Class AW |
PG derecelendirmesi | 40 |
Akustik STC | 37 dB |
Akustik OITC | 33 dB |
Açılma ve kapanma direnci | Class 4 |
Darbe dayanımı | I5/E5 |
- Her türlü binanın erişilebilirliğini iyileştirmek için eksiksiz açılım tipleri ve hatta renovasyon dostu düşük eşik seçeneği sunar.
- Açık köşe, ev sahiplerinin ve ziyaretçilerin yaşam alanlarını dışarıya doğru genişletmelerini sağlar.
- Ayrıca Concept Patio 130, güvenilir, hırsızlığa karşı dayanıklı bir çözümdür.
- İnce kenet : Pencerenin en görünür olduğu yerde şeffaflığını artırmak.
- Cam köşe: Görünümü engelleyen profiller olmadan camdan cama bağlantı
- Yavaş kapanma: Güvenlikle konforu birleştirir
- Gizli drenaj: Artık plastik kapaklar yok, bu temiz çizgilerin tadını çıkarın.